首页 | 加入收藏 | 设为主页企业邮局

客户服务热线 Hotline: (+86-510)8562 8887

 
 
首页
关于多灵
新闻动态
项目简介
图纸展示
工程实绩
视频展区
项目方案
资质荣誉
在线留言
联系我们
 
新闻动态
国内外城市生活垃圾 处理
2023-02-1
重庆建成世界大垃圾焚烧炉
2023-02-0
垃圾焚烧锅炉——让垃圾变
2023-02-0
环保工程施工监理亟待加强
2023-01-2
海南推进绿化宝岛生态工程
2023-01-2
江苏启动移动式建筑垃圾破
2023-01-1
 
 
资质荣誉
 
 
图纸展示
了解我们设计的更多细节,使您对我们的整体设计拥有更明确的认识
项目简介
从性能特点、技术经济指标、工艺示意说明等诸多方面详细了解。
在线留言
感谢您对我们提出宝贵意见或相关咨询,我们会及时回复信息,请留心查阅。
 
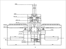
图纸展示
生活垃圾焚烧厂设备布置图
生活垃圾焚烧炉处理工艺流程示意图
生活垃圾焚烧炉工艺占地布置图
3条记录 当前第1/1页次 转至第
 
关于多灵 新闻动态 项目简介 图纸展示 工程实绩 视频展区 项目方案 资质荣誉 在线留言 联系我们
 
WEBSITE ® 2010 无锡多灵环保工程设备有限公司 版权所有 未经允许 不得转载
地址:江苏省无锡市华清路568号 联系人:许先生 18112382688  董事长:许锡元 13906177038  
项目总设计师:翁锡侠 13382896857  电话:0510-85628887
传真:0510-85627888  E-mail:huayu4901@163.com  网址:www.wxduolin.com

苏ICP备12064490号-1

网站建设:君通科技